Beschreibung
Sie suchen nicht nur nach einer lukrativen Immobilieninvestition, sondern möchten auch einen positiven sozialen Einfluss haben? Dann ist diese Gelegenheit genau das Richtige für Sie:
Der Kauf dieser 4½-Zimmer Eigentumswohnung an der Münsterstrasse 1i in Schenkon, mit lebenslangem Wohnrecht für den aktuellen, anfangs 80-ig jährigen Eigentümer, der eine dementsprechende Marktmiete bezahlt.
Mit diesem Investment erwerben Sie nicht nur eine hochwertige Immobilie, sondern bieten auch einem Menschen Sicherheit und Geborgenheit in seinem Zuhause. Sie investieren nicht nur in Steine und Beton, sondern in das Wohlbefinden eines Mitmenschen.
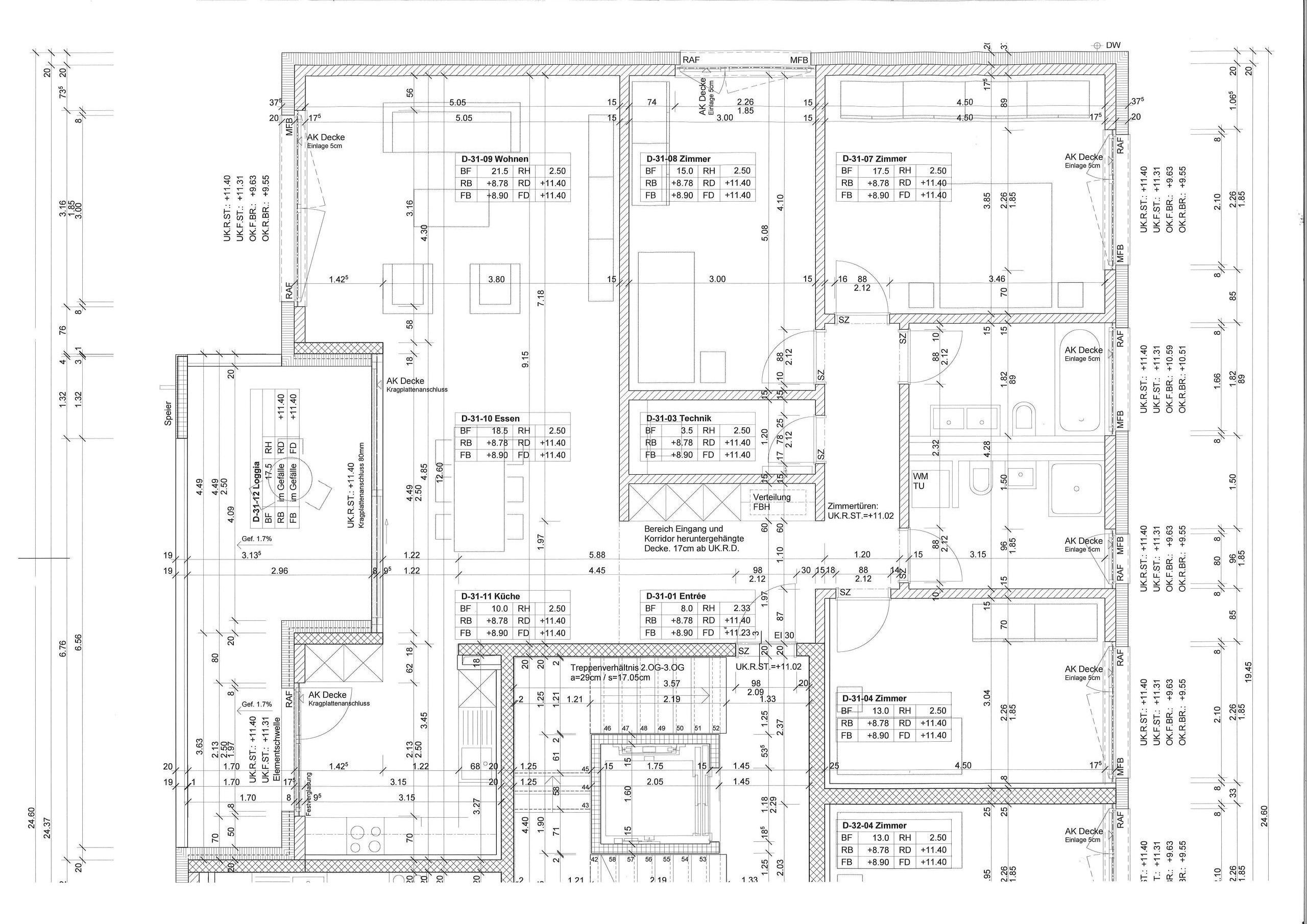
Die Wohnung befindet sich in einem Wohnhaus, dass 2011 erbaut wurde und verfügt über 125 m2 Nettowohnfläche. Die geräumige 17,6 m2 grosse Balkonfläche lädt zum Entspannen und Genießen der Umgebung ein.
---
Autoeinstellhalle:
Zur Wohnung gehört ein Einstellhallenplatz Nr. 20 und kostet zusätzlich CHF 35'000.- / nicht im Verkaufspreis enthalten!
Es werden aber immer wieder Parkplätze in dieser Überbauung zur Miete frei oder auch ein Kauf ist nicht ausgeschlossen.
---
Besichtigungen:
Nach Vereinbarung
---
Haben wir Ihr Interesse geweckt?
Wenn Sie an dieser Investition interessiert sind und mehr über die Details erfahren möchten, stehen wir Ihnen für Fragen gerne zur Verfügung, oder verlangen Sie die detaillierten Unterlagen.
Der Kauf dieser 4½-Zimmer Eigentumswohnung an der Münsterstrasse 1i in Schenkon, mit lebenslangem Wohnrecht für den aktuellen, anfangs 80-ig jährigen Eigentümer, der eine dementsprechende Marktmiete bezahlt.
Mit diesem Investment erwerben Sie nicht nur eine hochwertige Immobilie, sondern bieten auch einem Menschen Sicherheit und Geborgenheit in seinem Zuhause. Sie investieren nicht nur in Steine und Beton, sondern in das Wohlbefinden eines Mitmenschen.
Die Wohnung befindet sich in einem Wohnhaus, dass 2011 erbaut wurde und verfügt über 125 m2 Nettowohnfläche. Die geräumige 17,6 m2 grosse Balkonfläche lädt zum Entspannen und Genießen der Umgebung ein.
---
Autoeinstellhalle:
Zur Wohnung gehört ein Einstellhallenplatz Nr. 20 und kostet zusätzlich CHF 35'000.- / nicht im Verkaufspreis enthalten!
Es werden aber immer wieder Parkplätze in dieser Überbauung zur Miete frei oder auch ein Kauf ist nicht ausgeschlossen.
---
Besichtigungen:
Nach Vereinbarung
---
Haben wir Ihr Interesse geweckt?
Wenn Sie an dieser Investition interessiert sind und mehr über die Details erfahren möchten, stehen wir Ihnen für Fragen gerne zur Verfügung, oder verlangen Sie die detaillierten Unterlagen.
Lage
Die Wohnung liegt hervorragend und die Einkaufsmöglichkeiten sind in nächster Nähe.
Gemeinde
Wohnlich, sympathisch, attraktiv und innovativ: Das ist Schenkon, an der Sonnenseite des idyllischen Sempachersees gelegen. Mit dem Auto erreichen Sie Schenkon in fünf Minuten ab Anschluss Sursee (A2) und in 15 Minuten von Luzern. Zürich, Bern oder Basel liegen eine Auto-Stunde von der herzlichen, lebendigen Gemeinde Schenkon entfernt.
In nächster Nähe zur Überbauung Zellfeld Schenkon liegt eine Bushaltestelle. Via Sursee sind Sie dank der Intercity-Verbindungen mit der grossen, weiten Welt
verbunden.
Die rund 3'200 Einwohner profitieren von sehr attraktiven Steuersatz der Gemeinde. Schenkon liegt zur Zeit auf Platz 2 im Kanton Luzern.
Schenkon ist als bevorzugter Wohnort seit Jahren im Aufschwung und bietet zahlreiche Möglichkeit zur Freizeitgestaltung in unmittelbarer Nähe.
In nächster Nähe zur Überbauung Zellfeld Schenkon liegt eine Bushaltestelle. Via Sursee sind Sie dank der Intercity-Verbindungen mit der grossen, weiten Welt
verbunden.
Die rund 3'200 Einwohner profitieren von sehr attraktiven Steuersatz der Gemeinde. Schenkon liegt zur Zeit auf Platz 2 im Kanton Luzern.
Schenkon ist als bevorzugter Wohnort seit Jahren im Aufschwung und bietet zahlreiche Möglichkeit zur Freizeitgestaltung in unmittelbarer Nähe.
Eigenschaften
Umgebung
- Dorf
- Ländlich
- Berge
- Geschäfte
- Einkaufsmöglichkeiten
- Post
- Restaurant(s)
- Bushaltestelle
- Kinderfreundlich
- Spielplatz
- Kinderkrippe
- Kindergarten
- Primarschule
- Arzt
Aussenbereich
- Balkon(e)
Innenbereich
- Behindertengerecht
- Lift
- Einstellhallenplatz
- Wohnküche
- Wintergarten
- Keller
- Fahrradraum
- Einbauschrank
- Wasserenthärter
- Dreifachverglasung
- Hell
Ausstattung
- Moderne Küche
- Induktionsherd
- Backofen
- Steamer
- Kühlschrank
- Geschirrspüler
- Waschmaschine
- Wäschetrockner
- Dusche
- Telefon
- Kabelfernsehen
- Videotelefon
Boden
- Fliesen
- Parkett
Baustandard
- Minergie® zertifiziert
Distanzen
Bahnhof
2.48 km
39'
15'
6'
Öffentliche Verkehrsmittel
147 m
3'
3'
1'
Kindergarten
317 m
9'
9'
2'
Primarschule
317 m
9'
6'
2'
Sekundarschule
1.7 km
29'
9'
4'
Geschäfte
169 m
4'
4'
1'
Post
284 m
5'
5'
1'
Restaurants
41 m
5'
5'
-










